IHRE VORTEILE MIT DIESER IMMOBILIE
IHR ERSTER ÜBERBLICK
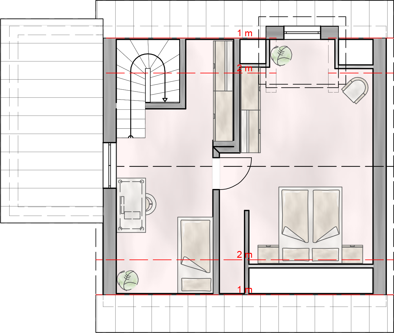
Auf einer Wohnfläche von ca. 88,00 m² zzgl. Vollkeller und Kriechboden stehen Ihnen vier Zimmer, eine Küche und ein Badezimmer zur Verfügung. Dieses charmante Einfamilienhaus aus dem Jahr 1937 begeistert mit einem authentischen Altbauflair (teils sanierungsbedürftig) und einer wohnlichen Atmosphäre. Die gemütlichen Räume bieten Platz für Sie ein Paar oder eine kleine Familie. Während das Erdgeschoss einen großzügigen Wohnbereich beherbergt – ideal für gesellige Stunden und Familienzeit – eröffnet das Obergeschoss die Möglichkeit eines offenen Loft-Schlafzimmers mit Charakter.
Besonders hervorzuheben sind die Holzbalken im Obergeschoss, der stilechte Dielenboden und die massive Holztreppe vom Erd- zum Obergeschoss, die mit überschaubarem Aufwand wieder in neuem Glanz erstrahlen kann. Die Gastherme wurde im Jahr 2022 erneuert. Das Tageslicht-Badezimmer ist klassisch ausgestattet und verfügt über eine Badewanne, ein Waschbecken und ein WC. Auch die Einbaumöbel in der vom Wohnbereich räumlich getrennten Küche zeigen sich eher funktional. Eine Waschküche finden Sie im Keller.
Im Außenbereich erwartet Sie viel Stauraum: Eine Doppelgarage bietet Stellfläche für zwei Fahrzeuge, ergänzt durch zusätzliche Abstellräume und einen Schuppen. Zum Entspannen gehen Sie auf die Terrasse vor dem separaten Wintergarten, von wo aus Sie den Blick in Richtung Abendsonne und auf einen kleinen Teich genießen.
In Petershagen sind Sie hervorragend angebunden. Einkaufsmöglichkeiten wie der Grüne Laden, Penny und REWE befinden sich in unmittelbarer Nähe – ebenso wie verschiedene Buslinien (934, 949, 951) und die S-Bahn (S5). Auch Grundschulen, Kitas und Ärzte sind zu Fuß oder mit dem Fahrrad schnell erreichbar.
360-GRAD-RUNDGANG UND WEITERE IMMOBILIEN?
EINKAUFEN IN PETERSHAGEN: PRAKTISCH, VIELFÄLTIG UND REGIONAL
In Petershagen genießen Sie eine komfortable Nahversorgung, die den Alltag besonders einfach gestaltet. Der PENNY-Markt befindet sich nur wenige hundert Meter entfernt – ideal für schnelle Besorgungen zwischendurch. Auch ein REWE-Markt liegt in angenehmer Nähe und ist in weniger als fünf Autominuten erreichbar.
Wer Wert auf regionale und biologische Produkte legt, findet auf dem Bauernmarkt eine besondere Auswahl. Hier werden unter anderem Erzeugnisse vom Internationalen Kinderbauernhof aus der Nachbarschaft angeboten – frisch, nachhaltig und mit regionalem Bezug. Darüber hinaus bietet der Grüne Laden ein überzeugendes Angebot an Bio-Lebensmitteln u.v.m. Für den größeren Wocheneinkauf steht die Kaufland-Filiale in Vogelsdorf zur Verfügung, die Sie in rund neun Autominuten erreichen.
Ausgedehnte Shoppingtouren lassen sich im Handelscentrum Strausberg erledigen, das in etwa 14 Minuten mit dem Auto erreicht ist und mit zahlreichen Fachgeschäften und gastronomischen Angeboten lockt.
GUTE ANBINDUNG – FLEXIBEL UNTERWEGS ZWISCHEN BERLIN UND STRAUSBERG
Die Verkehrsanbindung in Petershagen überzeugt mit schnellen Verbindungen und vielseitigen Mobilitätsangeboten. Die Buslinien 933, 949 und 951 sind in etwa drei Minuten mit dem Fahrrad erreichbar und verbinden Sie zuverlässig mit der näheren Umgebung in und um Petershagen und Fredersdorf.
In nur rund fünf Autominuten und etwa sieben Minuten auf dem Fahrrad erreichen Sie den Bahnhof Fredersdorf, von dem aus die S-Bahn-Linie S5 eine direkte Verbindung nach Berlin sowie nach Strausberg bietet – ideal für Pendler und alle, die regelmäßig in die Stadt unterwegs sind.
Auch mit dem Auto profitieren Sie von einer sehr guten Anbindung. Die B1 liegt nur wenige Minuten entfernt und ermöglicht es, die A10 (Berliner Ring) in etwa sechs Minuten zu erreichen. Dadurch gelangen Sie nicht nur zügig in alle Richtungen der Region, sondern erreichen auch den Flughafen BER in rund 36 Minuten.
BILDUNG UND ENTWICKLUNG – KURZE WEGE FÜR DEN FAMILIENALLTAG IN PETERSHAGEN
Für Familien bietet Petershagen ein gut strukturiertes und wohnortnahes Bildungsangebot. Die Kita „Pfiffikus“ ist in nur etwa fünf Autominuten erreichbar, ebenso die „Stephanus“ Kita, die so zu sagen um die Ecke liegt. In der direkten Umgebung befindet sich außerdem die Grundschule Petershagen mit angeschlossenem Hort, sodass Betreuungs- und Schulwege angenehm kurz bleiben.
Ältere Kinder besuchen die Gesamtschule mit gymnasialer Oberstufe in Petershagen, die in nur rund fünf Minuten mit dem Fahrrad erreichbar ist und eine weiterführende schulische Perspektive bietet.
Auch außerhalb des Unterrichts stehen zahlreiche Möglichkeiten zur Verfügung: Kinder und Jugendliche können sich sportlich beim Tischtennis im Kreisfachverband Märkisch-Oderland, beim Fußball im Verein Rot-Weiß Vogelsdorf e.V. oder bei kreativen Angeboten wie Tanzen und Einradfahren engagieren. So verbindet Petershagen kurze Bildungswege mit einem vielseitigen und aktiven Freizeitangebot.
BÄDER
BÖDEN
DACH
DECKENHÖHEN
FENSTER
GARTEN
HAUSTECHNIK
HEIZUNGSANLAGE
KELLER
Küchen
Licht
STAURAUM
TÜREN
TREPPEN
WÄNDE/DECKEN
WISSENSWERTES
AKTUELLE IMMOBILIENANGEBOTE? FOLGEN SIE UNS!
Instagram
https://www.instagram.com/rosa.immobilien/
Facebook
https://www.facebook.com/rosa.immobilien/
INFORMATIONEN RUND UM DEN IMMOBILIENKAUF
Diese Immobilie wird im Alleinauftrag verkauft.
Sehr gern ist unser Finanzierungspartner Ihnen auch bei der passenden Finanzierung behilflich.
Alle Informationen im Exposé basieren auf Angaben des Verkäufers. Trotz der gewissenhaften Erstellung und Prüfung des Exposés können Irrtümer auftreten. Eine Haftung dafür schließen wir ausdrücklich aus.
Der Zwischenverkauf bleibt vorbehalten. Die Verhandlung mit dem Verkäufer sind stets freibleibend, vorbehaltlich des Zwischenverkaufs sowie vorbehaltlich der Zustimmung des Verkäufers. Schadensersatzansprüche aus Beratungs-, Finanzierungskosten etc. werden nicht anerkannt bzw. übernommen.
Wir weisen vorsorglich darauf hin, dass der Kaufpreis im Falle einer hohen Nachfrage steigen kann.


NEUE IMMOBILIEN 48 STUNDEN VOR ALLEN ANDEREN ENTDECKEN!




„*“ zeigt erforderliche Felder an


NEUE IMMOBILIEN 48 STUNDEN VOR ALLEN ANDEREN ENTDECKEN!