IHRE VORTEILE MIT DIESER IMMOBILIE
IHR ERSTER ÜBERBLICK
Auf rund 97,69 m² Wohnfläche beherbergt diese Sanierungsimmobilie fünf Zimmer, eine Küche, ein Bad, eine große Loggia und einen Keller, der über einen separaten Eingang zugänglich ist. Das Haus besteht aus einem Wohnhaus und zwei verschiedenen Anbauten, die den Wohnbereich um die Loggia erweitern und aus dem unauffälligen Gebäude ein potentiell gemütliches Einfamilienhaus zaubern. Hier wohnen Sie als Single, Paar oder als kleine Familie, die in den separaten Schlafzimmern im Dachgeschoss ihre Schlafplätze findet.
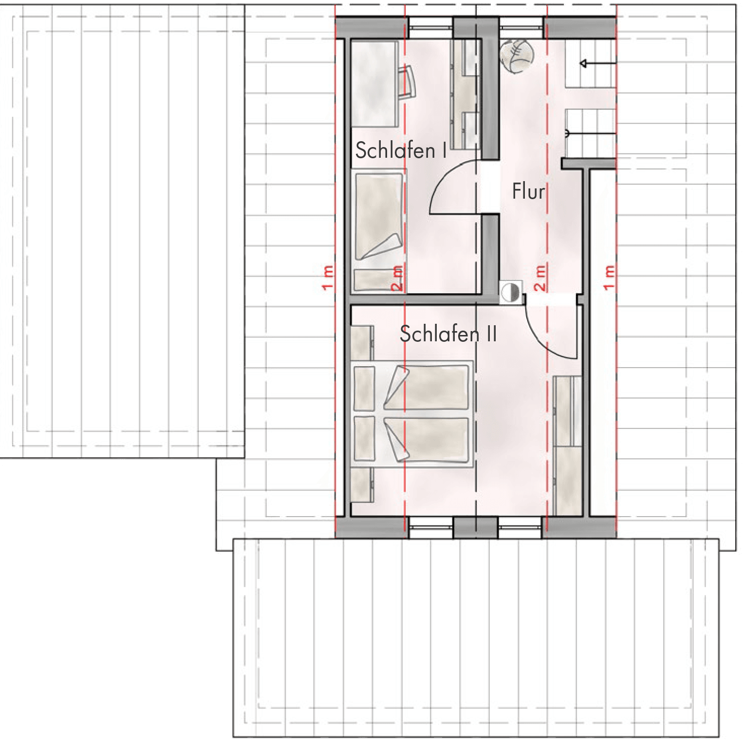
Freuen Sie sich auf eine Raumaufteilung mit klaren Linien. Im Erdgeschoss erwarten Sie ein Esszimmer, ein Wohnzimmer, eine Loggia und eine Küche in jeweils voneinander getrennten Räumen. Die nach Süden ausgerichtet und verhältnismäßig modern gestaltete Loggia überzeugt mit einer angenehmen Größe und viel Tageslicht. Im Obergeschoss nutzen Sie die beiden Räume als Schlafzimmer oder eine Kombination aus Ankleide/Schlafen oder Arbeiten/Schlafen.
Das Haus befindet sich an einer ruhigen Anliegerstraße mit Feldern nördlich und südlich des Grundstücks. Ein Nebengebäude bietet viel Platz für Ihre Gartengeräte und Fahrzeuge. Südlich des Nebengebäudes prägt ein Mischwäldchen Ihr Grundstück.
Hier wird Ihnen viel Raum geboten, um Ihre persönlichen Vorstellungen von einem Leben im Oderbruch umzusetzen. Aber auch in Bleyen-Genschmar selbst können Sie aktiv werden: Ein Sportplatz befindet sich inmitten des Dorfes und auch Gaststätten wie der Fischereihof Schneider sind in der Nähe. Zahlreiche Ärzte, Einkaufsoptionen, Kitas und Schulen befinden sich in Küstriner Vorland, Küstrin, Manschnow, Golzow, Seelow und Frankfurt Oder. So wohnen Sie überraschend gut angebunden.
WEITERE IMMOBILIEN?
EINKAUFEN IN DEUTSCHLAND ODER POLEN: ALLES IN UNMITTELBARER NÄHE
Um für Ihren täglichen Bedarf einzukaufen, sind Sie von Ihrem zukünftigen Zuhause aus nur wenige Minuten unterwegs. EDEKA befindet sich etwa neun Fahrminuten von Ihrem Wohnort entfernt – und bietet saisonale und regionale Produkte für Ihren Wocheneinkauf an. Auch LIDL, Netto, Biedronka, Intermarche und viele weitere Geschäfte stehen Ihnen zur Verfügung. Auf der polnischen Seite des Odergebiets in Küstrin, das Sie bequem mit dem Auto oder dem Fahrrad erreichen, profitieren Sie insbesondere von günstigen Preisen und einer großen Vielfalt.
Für frische Brötchen, Brot und feines Gebäck nehmen Sie unterwegs auf dem Rückweg bei der Bäckerei Felske im Nachbarort Küstrin-Kiez mit – oder falls es lieber Fleisch sein soll – beim Fleischerei- und Partyservice Berger. Ihre Großeinkäufe erledigen Sie in der etwa 20 Minuten entfernten Kaufland-Filiale in Seelow. Die nächsten Einkaufszentren freuen sich im Stadtzentrum von Frankfurt Oder auf Ihren Besuch. Knapp 30 Minuten dauert die Fahrt bis in die Stadt.
RUHIG WOHNEN IM ODERBRUCH – MIT GUTER VERKEHRSANBINDUNG
Das grenznahe Küstrin ist ein beliebtes Urlaubsziel. Nicht nur wegen seiner historischen Atmosphäre, sondern auch wegen der malerischen Landschaft und des Polenmarkts. Ein Glück also, dass viele Bus- und Zugverbindungen dorthin führen.
Mit der Linie 935, die nur wenige hundert Meter von Ihrer Haustür entfernt hält, gelangen Sie bequem zum Bahnhof Küstrin Kiez. Von dort aus bringt Sie die Regionalbahn 26 in sechs Minuten über die Grenze. Oder – falls Sie lieber in die andere Richtung wollen – in eineinhalb Stunden nach Berlin.
Noch schneller und flexibler sind Sie mit dem Auto unterwegs. Mehrere Bundesstraßen befinden sich in unmittelbarer Nähe, darunter die B1, die über die Oderbrücke nach Polen führt, und die B112, die Sie vom Küstriner Vorland in einer halben Stunde bis nach Frankfurt (Oder) bringt.
SICHERES HERANWACHSEN UND ERHOLUNG FÜR DIE GANZE FAMILIE
In Ihrer neuen Heimat müssen Sie sich um das Heranwachsen Ihrer Kinder keine Sorgen machen. In den ruhigen Gemeinden können sich Ihre Liebsten frei entfalten und finden in unmittelbarer Nähe einen Betreuungsplatz. Nur wenige Fahrminuten entfernt, in dem Nachbarort Manschnow, befinden sich sowohl ein Kindergarten als auch eine Grundschule, an denen Kinder lernen und spielen. Die Grundschule „Kinder von Golzow“ bietet mit vielfältigen Sport- und Freizeitangeboten eine gute Alternative.
Ältere Kinder besuchen das Gymnasium auf den Seelower Höhen oder die Bertolt Brecht Oberschule in Seelow. Diese erreichen Sie am besten mit dem Auto oder der Regionalbahn. In ihrer Freizeit können sich Heranwachsende im Oderbruch in vielen Sportarten austoben: Tanzen, Fußball, Bogenschießen, Angeln – die Auswahl ist groß genug und die Sportplätze zahlreich. Darüber hinaus lockt der Oderbruch mit fantastischen Fahrrad- und Wanderrouten, die Groß und Klein begeistern!
Keine Angabe
AKTUELLE IMMOBILIENANGEBOTE? FOLGEN SIE UNS!
Instagram
https://www.instagram.com/rosa.immobilien/
Facebook
https://www.facebook.com/rosa.immobilien/
INFORMATIONEN RUND UM DEN IMMOBILIENKAUF
Diese Immobilie wird im Alleinauftrag verkauft.
Sehr gern ist unser Finanzierungspartner Ihnen auch bei der passenden Finanzierung behilflich.
Alle Informationen im Exposé basieren auf Angaben des Verkäufers. Trotz der gewissenhaften Erstellung und Prüfung des Exposés können Irrtümer auftreten. Eine Haftung dafür schließen wir ausdrücklich aus.
Der Zwischenverkauf bleibt vorbehalten. Die Verhandlung mit dem Verkäufer sind stets freibleibend, vorbehaltlich des Zwischenverkaufs sowie vorbehaltlich der Zustimmung des Verkäufers. Schadensersatzansprüche aus Beratungs-, Finanzierungskosten etc. werden nicht anerkannt bzw. übernommen.
Wir weisen vorsorglich darauf hin, dass der Kaufpreis im Falle einer hohen Nachfrage steigen kann.


NEUE IMMOBILIEN 48 STUNDEN VOR ALLEN ANDEREN ENTDECKEN!




„*“ zeigt erforderliche Felder an


NEUE IMMOBILIEN 48 STUNDEN VOR ALLEN ANDEREN ENTDECKEN!